Zyre 570m2 në shitje në lagjen Lakrishtë - Dukagjini Tower

1,925,000 € Per Shitje Prishtina-Lakrishtë-

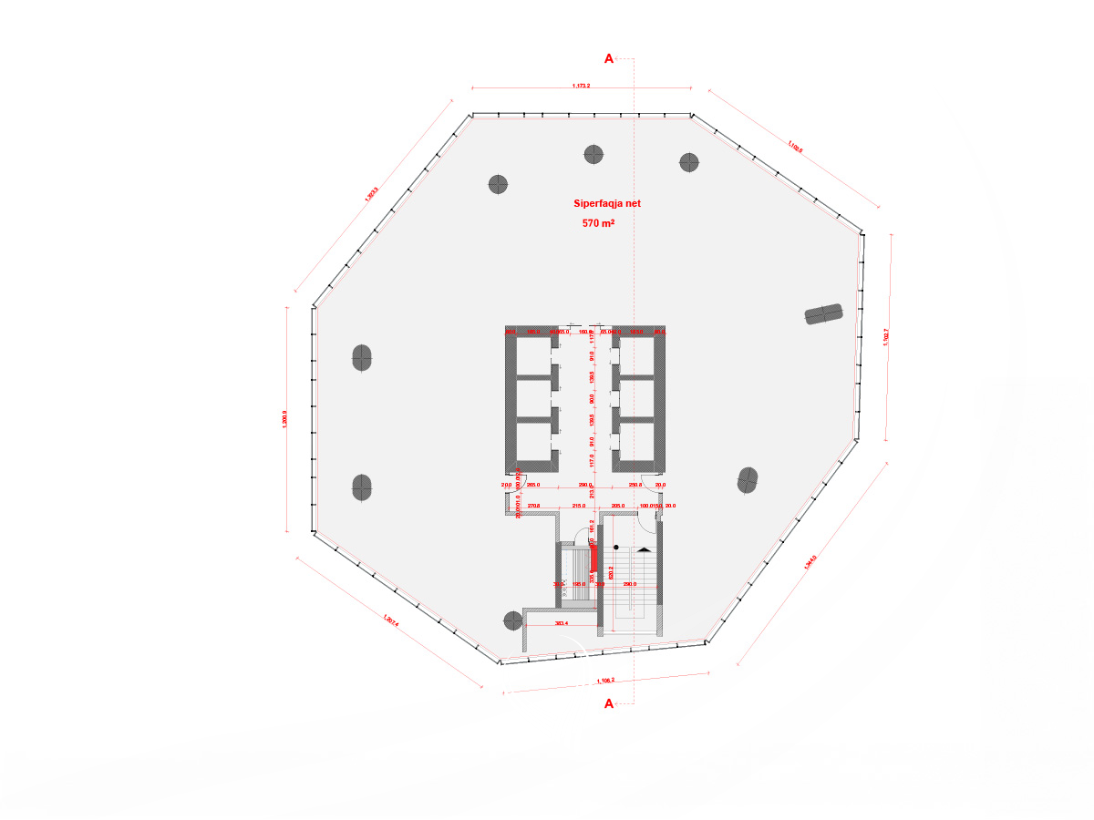
Zyra gjendet në ndërtesën Dukagjini Tower, në një prej lokacioneve më atraktive të Prishtinës, në objektin e dedikuar për afarizëm, me pamje 360 shkallë. Kjo zyrë është projektuar për të ofruar kushte moderne dhe një ambient pune të këndshëm për stafin dhe klientët. Sipërfaqja e zyres është 570m2, dhe ofron një pamje të jashtëzakonshme që përmirëson imazhin profesional të biznesit dhe krijon një atmosferë pozitive për punonjësit. Pozicioni i saj strategjik siguron qasje të shpejtë në qendër të Prishtinës dhe lidhje të lehta me rrugët kryesore jashtë qytetit, duke e bërë të lehtë për klientët dhe stafin ardhjen dhe qasjen në zyrë. Ndërtesa është e pajisur me 6 ashensorë funksionalë, të cilët janë dizajnuar për lëvizje të shpejtë dhe të pandërprerë, duke rritur efikasitetin e përditshëm, si dhe ngohjen qëndrore e ka të lidhur me Termokos. *Prona ka çeritikatë prone dhe në çmim është e përfshirë TVSH-ja.

Detaje

Statusi Lloji Gjendja ID
Available Office New T4689

Ndarjet e Pronës

Siperfaqe Bruto Siperfaqe Neto Dhoma gjumi Tualete
570 0 0 0

Karakteristika

  • Ngrohje qendrore: Termokos
  • Paisje ekstra: Alarm Sigurie,Kamera,Alarm zjarri,Ashensor
  • Orientimi: Lindje,Jug,Perëndim,Veri

Vendodhja e prones