Hapësirë afariste për zyre 521m2 me qira në lagjen Mati 1

3,500 € / Muaj Per Qira Prishtina-Mati 1-

Hapësira afariste për zyre në lagjen Mati 1, e ndërtuar nga kompania "Conin", ofron një mundësi të shkëlqyer për qira. Ndodhet në një kompleks të rehatshëm dhe modern, në afërsi të Rrugës C dhe në një vendodhje të përshtatshme pranë marketit SPAR.
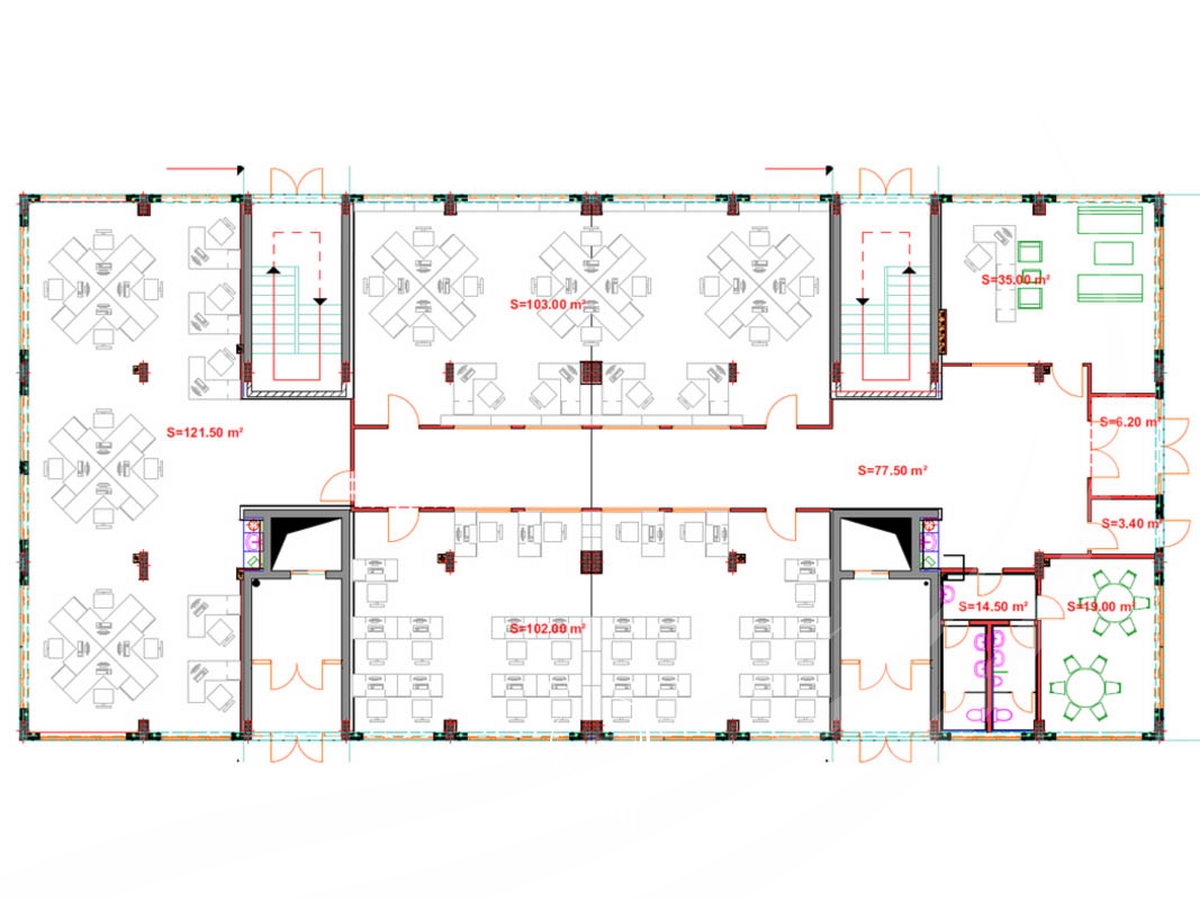
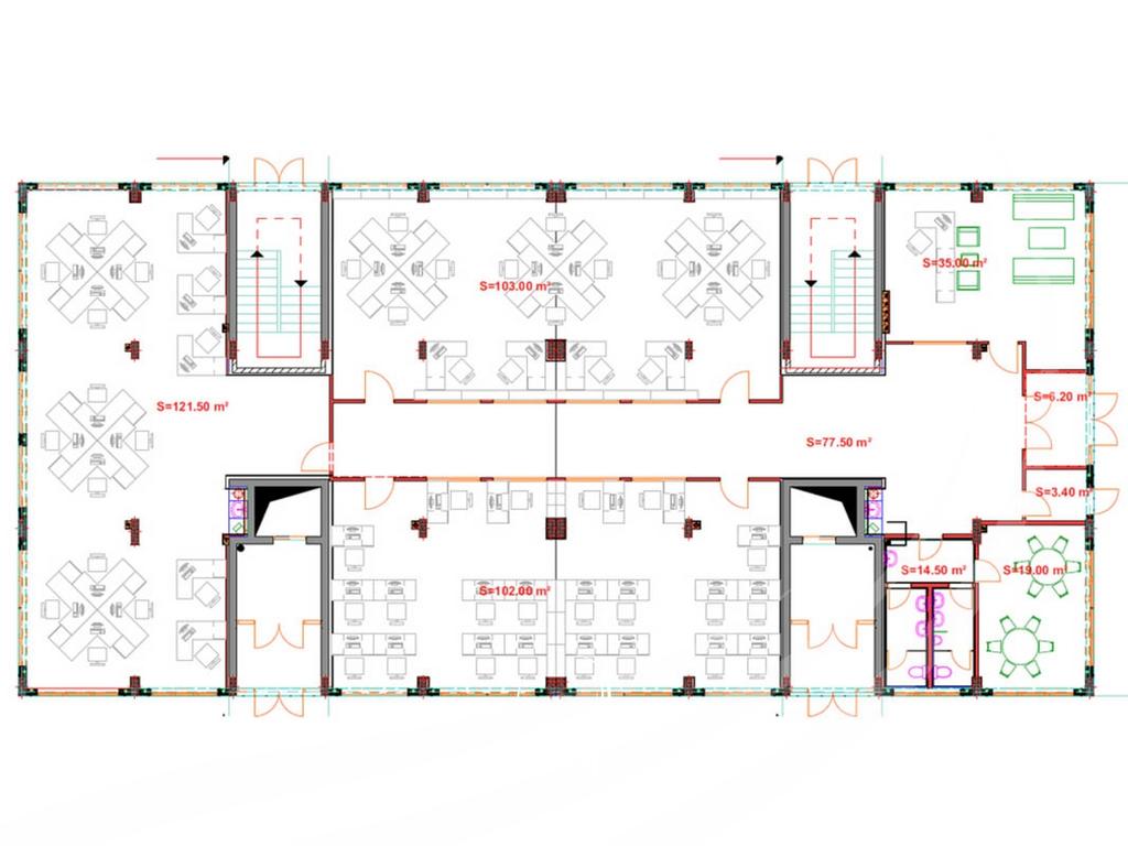
Hapësira afariste ka një sipërfaqe neto prej 482.1m² dhe një sipërfaqe bruto prej 521m². Ajo ofron 5 hapësira të ndara që mund të përdoren për zyre, me mundësi për ndarje shtesë për të krijuar deri në 8 hapësira të pavarura. Hapësirat janë të rehatshme dhe të përshtatshme për aktivitete administrative, call centre dhe shfrytëzime të ngjashme.
Hapësira disponon gjithashtu dy tualeta të pavarura për përdorim të përbashkët dhe një hapësirë për rekreacion, që ofron një ambient të mbarë dhe të relaksuar për punonjësit.
Dyshema e hapësirës afariste është e mbuluar me linoleum, duke e bërë të përshtatshme për mobilje dhe lëvizje të lehta si dhe ka ngrohje qëndrore me Termokos e cila e ngrohë mire objkeitn me cmim te arsyeshëm. Lartësia e dyshemes me tavan është 3.2 metra, duke krijuar një ndjenjë të hapësirës dhe ajrit të freskët.
Kjo hapësirë ndodhet në nivelin 0 të ndërtesës, duke e bërë të lehtë qasjen për klientët dhe stafin..
Një avantazh shtesë i kësaj prone është parkingu i disponueshëm për 10 vetura në garazhin e objektit të cilat mund të shfrytëzohen me qira (me pagesë ekstra). Kjo siguron vendparkim të mjaftueshëm për klientët dhe stafin tuaj, duke e bërë më të lehtë qasjen dhe lëvizjen në hapësirën afariste.
Hapësira afariste në lagjen Mati 1 është një zgjedhje e shkëlqyeshme për biznesin tuaj, duke ofruar një ambient modern, të përshtatshëm dhe me mundësi të shumta për organizimin e hapësirës sipas nevojave të kompanisë tuaj.

Detaje

Statusi Lloji Gjendja ID
Available Office Used T1641

Ndarjet e Pronës

Siperfaqe Bruto Siperfaqe Neto Dhoma gjumi Tualete
521 0 0 0

Karakteristika

  • Ngrohje qendrore: Pelet
  • Paisje ekstra: Alarm zjarri

Vendodhja e prones